_HORIZONTAL%20BRANCO.png)

Serviços em destaque
Execução de projetos e obras
Desde a concepção do projeto, à implantação da obra, a Jaspe atua conforme critério do cliente. As execuções tem sido relevantes no segmento turístico e no âmbito público.

Incorporação Imobiliária
Execução do Estudo de Viabilidade Financeira e plano de incorporação do empreendimento até a entrega das chaves.

Construção residencial
Execução de processo para construção financiada, construção particular, gerenciamento e obras por administração.

Construção Vertical
Execução de obras verticais por administração.

Projetos em destaque
Residências multifamiliares
Com área total de 334,66 m² que está sendo executado na cidade de Morrinhos - GO. Esse projeto foi elaborado após estudo de viabilidade econômica realizado pela Jaspe e aprovado pelo cliente com expectativa de retorno otimista. Conta com 4 apartamentos amplos que serão alugados e posteriormente comercializadora através de incorporação.
Residência unifamiliar-JP
Trata-se de um projeto residencial de médio alto padrão com área total de 135,27 m2 e será executado na cidade de Rio Quente - GO. Possui área de lazer com deck e piscina, bem como, é um projeto sustentável com energias renováveis.
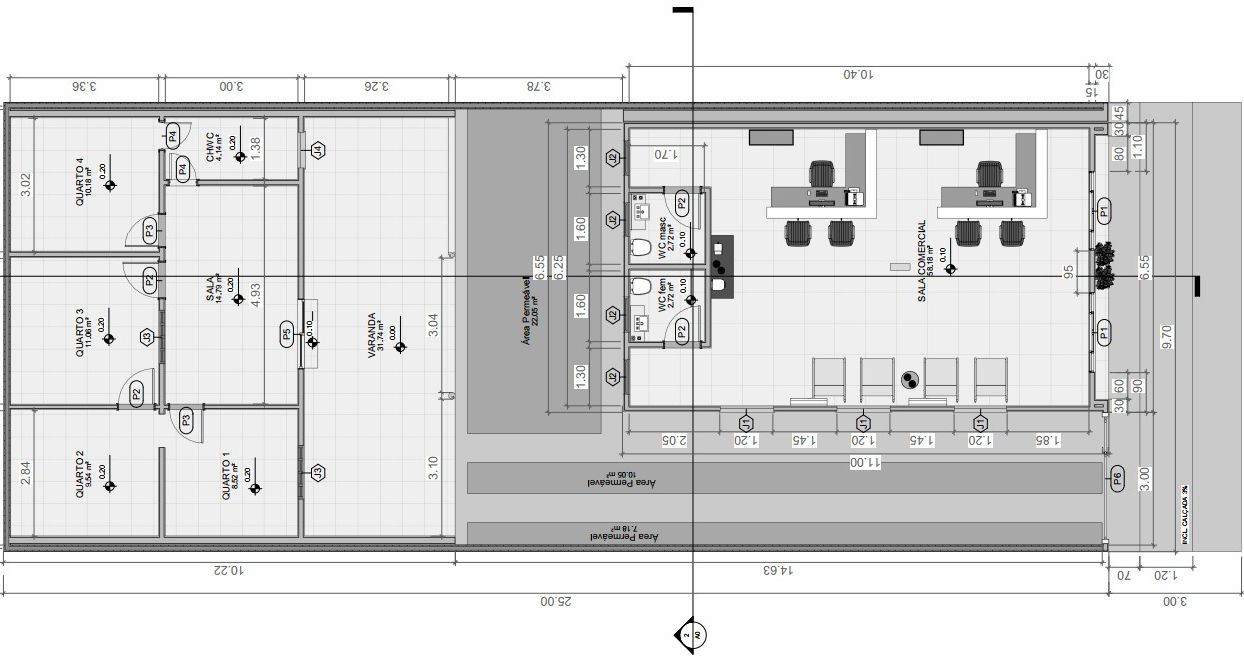
Projeto para Sala comercial
Com área total de 72,05 m² que foi executado na cidade Caldas Novas - GO. Um projeto que a Jaspe desenvolveu conceito arquitetônico, realizou aprovação legal e acompanhou toda execução da obra.
Residência unifamiliar de médio alto padrão
Com área total de 168,89 m² que foi executado na cidade de Caldas Novas - GO
Empresas que confiaram nas nossas soluções









Quem somos
Somos uma empresa de construção civil com foco na qualidade e na experiência, buscando entender o propósito individual de cada cliente. A Jaspe nasceu em 2013 com a prestação de serviços topográficos e veio se expandindo ao longo dos anos, e, em 2018 assumiu os desafios na construção civil pura através de edificações horizontais e posteriormente verticais.
Hoje, a Jaspe possui portfólio sólido e idôneo, e tem contribuído com o desenvolvimento do país nos seguimentos diversos da engenharia e arquitetura, dentro os quais se orgulha por ter entregue obras de grande impacto tanto no meio turístico, quanto no âmbito socioeconômico, na incorporação imobiliária, com obras residenciais, obras verticais e obras públicas.
Estamos certos de que estamos construindo um país melhor!

































